Ligue Agora +55 11 4210-2060 +55 11 99483-6754

Salas para Alugar | Ref.: 546270

Avenida Presidente Juscelino Kubitschek | Vila Nova Conceição | São Paulo | SP

R$ 70.000,00

Valor do Aluguel

R$ 9.900,00

Valor do Condomínio

R$ 8.200,00

IPTU

0

Dormitórios

0

Suítes

13

Vagas

426,42 m²

Área Útil

Descrição

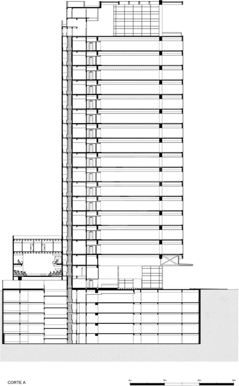
O JK 1600 está localizado na Av. Pres. Juscelino Kubitschek, 1600, na região Faria Lima / Itaim Bibi da cidade São Paulo
O edifício possui um total de 15 andares com lajes a partir de 852 m²e conta com 9 elevadores sociais.
O JK 1600 possui ar-condicionado Central, certificação green building e um total de 330 vagas de estacionamento.
Com padrão corporativo de ocupação, o edifício é sede de empresas dos segmentos Saúde, Seguros / Previdência Privada e Agricultura / Pecuária / Silvicultura.
Passados 8 anos desde o termino da sua construcao, o JK 1600 possui especificações técnicas elevadas e boa imagem corporativa obtendo a classificação Buildings A.

Diferenciais do Imóvel

Acesso para deficientes físicos
Área verde
Auditório
Teatro
Elevador
Portaria
Estacionamento rotativo

Pontos de Interesse

Voltar